Save
Ask
Tour
Hide
$539,500
New Listing
8485 Eagle Creek DriveDe Soto, KS 66018
For Sale|Single Family Residence|Active
4
Beds
3
Total Baths
3
Full Baths
2,150
SqFt
$251
/SqFt
Subdivision:
Residences At Eagle Creek
County:
Johnson
Due to the health concerns created by Coronavirus we are offering personal 1-1 online video walkthough tours where possible.




Save
Ask
Tour
Hide
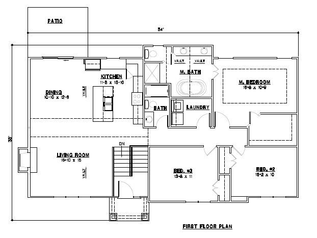
The William split level plan by L/M Custom Homes is currently under construction on lot 14. Estimated completion October 2026.
Save
Ask
Tour
Hide
Listing Snapshot
Price
$539,500
Days On Site
0 Days
Bedrooms
4
Inside Area (SqFt)
2,150 sqft
Total Baths
3
Full Baths
3
Partial Baths
N/A
Lot Size
0.31 Acres
Year Built
N/A
MLS® Number
2617335
Status
Active
Property Tax
$8,093
HOA/Condo/Coop Fees
$30.42 monthly
Sq Ft Source
N/A
Friends & Family
Recent Activity
| 9 hours ago | Listing updated with changes from the MLS® | |
| 9 hours ago | Listing first seen on site |
General Features
Acres
0.31
Attached Garage
Yes
Direction Faces
West
Garage
Yes
Garage Spaces
3
Levels
Multi/Split
Parking
AttachedGarage Faces Front
Property Condition
Under Construction
Property Sub Type
Single Family Residence
Security
Smoke Detector(s)
Sewer
Public Sewer
SqFt Above
1513
SqFt Below
637
Style
Traditional
Water Source
Public
Interior Features
Appliances
Electric OvenDishwasherDisposalFree-Standing Electric Oven
Basement
ConcreteDaylightFinished
Cooling
Electric
Fireplace
Yes
Fireplace Features
GasInsertLiving Room
Fireplaces
1
Heating
Forced AirFireplace Insert
Interior
Walk-In Closet(s)Kitchen IslandPantry
Laundry Features
Laundry Room
Bathroom 2
Level - Upper
Bathroom 3
Level - Lower
Bedroom 2
Level - Upper
Bedroom 3
Level - Upper
Bedroom 4
Level - Lower
Dining Room
Level - Upper
Kitchen
Level - UpperFeatures - Pantry
Laundry
Level - Upper
Living Room
Level - Upper
Primary Bathroom
Level - UpperFeatures - Double Vanity
Primary Bedroom
Level - UpperFeatures - Walk-In Closet(s)
Save
Ask
Tour
Hide
Exterior Features
Construction Details
Frame
Other Structures
None
Patio And Porch
Patio
Roof
Composition
Community Features
Association Dues
365
Financing Terms Available
CashConventional
HOA Fee Frequency
Annually
MLS Area
350 - N=Co Ln;S=K-10;E=Moonlight Rd;W=Co Ln
Roads
Paved
School District
De Soto
Schools
School District
De Soto
Elementary School
Starside
Middle School
Lexington Trails
High School
De Soto
Listing courtesy of Weichert, Realtors Welch & Co. [email protected]
The information displayed on this page is confidential, proprietary, and copyrighted information of Heartland Multiple Listing Service, Inc. (“Heartland MLS”). Copyright 2026, Heartland Multiple Listing Service, Inc. Heartland MLS and Weichert, Realtors Welch & Co. do not make any warranty or representation concerning the timeliness or accuracy of the information displayed herein. In consideration of the receipt of the information on this page, the recipient agrees to use the information solely for the private noncommercial purpose of identifying a property in which the recipient has a good faith interest in acquiring.
Terms of Use
Last checked 2026-04-30 01:21 AM CDT
The information displayed on this page is confidential, proprietary, and copyrighted information of Heartland Multiple Listing Service, Inc. (“Heartland MLS”). Copyright 2026, Heartland Multiple Listing Service, Inc. Heartland MLS and Weichert, Realtors Welch & Co. do not make any warranty or representation concerning the timeliness or accuracy of the information displayed herein. In consideration of the receipt of the information on this page, the recipient agrees to use the information solely for the private noncommercial purpose of identifying a property in which the recipient has a good faith interest in acquiring.
Terms of Use
Last checked 2026-04-30 01:21 AM CDT
Neighborhood & Commute
Source: Walkscore
Save
Ask
Tour
Hide


